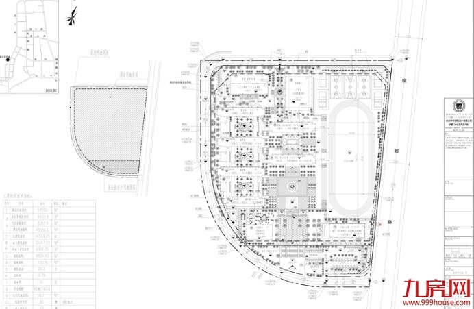
北城小学项目位于新罗区北城谢洋,该项目于2013年4月取得建筑单体建筑设计方案批复文件,因港昌化工厂征地问题将该用地划分为一期二期用地,规划指标及计算方式调整,需对该项目建设方案进行部分调整,具体如下:
1、调整家长接送区、代征道路、建设用地面积。家长接送区由5587.31平方米调整为4603.8平方米、代征道路面积由6184平方米调整为6361.6平方米、建设用地面积由52104平方米调整为43584.6平方米;s
2、因项目用地情况因素,半地下室面积由6885.09平方米调整为4077.75平方米;
3、2号楼由6层调整为5层,地上建筑面积31150.83平方米调整为30487.23平方米;
4、建筑密度由16.96%调整为20.3%,容积率0.73调为0.79,校园停车位按照规范调整为80个;
5、调整的经济技术指标符合控规图。
依据《福建省实施<中华人民共和国城乡规划法>办法》《福建省城乡规划信息公开公示暂行办法》规定,现将该项目上述调整部分进行公示,征求利害关系人意见。公示时间为2019年7月16日至7月24日,共7个工作日。在公示期限内,利害关系人若有意见,可来信、来访、来电或采取听证等方式向我局反映、发表意见和看法。逾期未提出,视为无异议。龙岩市自然资源局办公地点:龙岩市新罗区莲新南路2号;邮编:364000;网址:http://zrzyj.longyan.gov.cn/ ;联系电话:0597-2231266;联系人:张工。
附件:拟调整前后总平图
总平面图(修改后)
总平面图(原审批通过)










闽公网安备 35020302035470号
最新评论